Sold Out Ebony 36/72

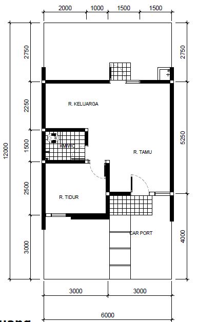
Tipe 36/72 cocok buat yang menginginkan rumah agak lega dengan harga terjangkau. Satu kamar tidur + ruang keluarga yang bisa disekat menjadi kamar tidur. Luas tanah 36m. Lihat Siteplan Ebony

ebony 36/72 citra indah

 ebony 36/72 citra indah

ebony 36/72

Lokasi Ebony

Silakan lihat gambar besar tidak pecah masterplan CitraIndah ditautan berikut Masterplan Citraindah September 2015. Sekilas lokasi Ebony dapat dilihat di gambar di bawah ini.

 

lokasi Ebony Citra Indah

Loaksi Ebony dilhat dari keseluruhan masterpolan sepinats lalu.

lokasi ebony citra indah

Harga 1 Januari 2018 Bukit Ebony

 Tipe LB LT Harga Harga Harga
  Tunai 12 bulan KPR ke-1
Ebony 1 22 72 175,710,000 194,474,550 190,900,350
Ebony 1A 22 90 210,325,000 232,724,125 228,457,625
Ebony 2 36 72 214,350,000 237,171,750 232,824,750
Ebony 3 36 90 256,785,000 284,062,425 278,866,725
Ebony 3A 36 96 266,790,000 295,117,950 289,722,150
Ebony 4 38 120 361,492,500 399,764,213 392,474,363

Modal Pertama = DP + Biaya KPR, lihat promo

 Tipe LB LT Harga DP 5% Estimasi  Modal Pertama
  KPR ke-1 Biaya KPR DP+ biaya KPR
Ebony 1 22 72 190,900,350 9,545,018 9,067,767 18,612,784
Ebony 1A 22 90 228,457,625 11,422,881 10,851,737 22,274,618
Ebony 2 36 72 232,824,750 11,641,238 11,059,176 22,700,413
Ebony 3 36 90 278,866,725 13,943,336 13,246,169 27,189,506
Ebony 3A 36 96 289,722,150 14,486,108 13,761,802 28,247,910
Ebony 4 38 120 392,474,363 19,623,718 18,642,532 38,266,250

Simulasi angsuran KP dengan asmusi Dp 5% dan bunga 6.5%

 Tipe LB LT Harga  Angsuran KPR/bln (Tahun)| Bunga 6.50%
  KPR ke-1 5 10 15 20
Ebony 1 22 72 190,900,350 3,548,425 2,059,253 1,579,800 1,352,137
Ebony 1A 22 90 228,457,625 4,246,534 2,464,386 1,890,606 1,618,153
Ebony 2 36 72 232,824,750 4,327,709 2,511,494 1,926,746 1,649,085
Ebony 3 36 90 278,866,725 5,183,530 3,008,151 2,307,767 1,975,198
Ebony 3A 36 96 289,722,150 5,385,309 3,125,250 2,397,601 2,052,086
Ebony 4 38 120 392,474,363 7,295,251 4,233,644 3,247,929 2,779,874

 

Off Canfas Menu