Cluster Bukit Damar tipe 22/72 adalah rumah Paling Murah di CitraIndah City. Luas bangunan 22m. Luas tanah 72m, dengan lebar 6m dan panjang 12m. 1 kamar tidur. 1 kamar mandi. Sisa tanah di depan dan di belakang bisa dikembangkan. Tersedia di blok CF.26, blok CF.30, dan blok CF.33.
Lihat juga
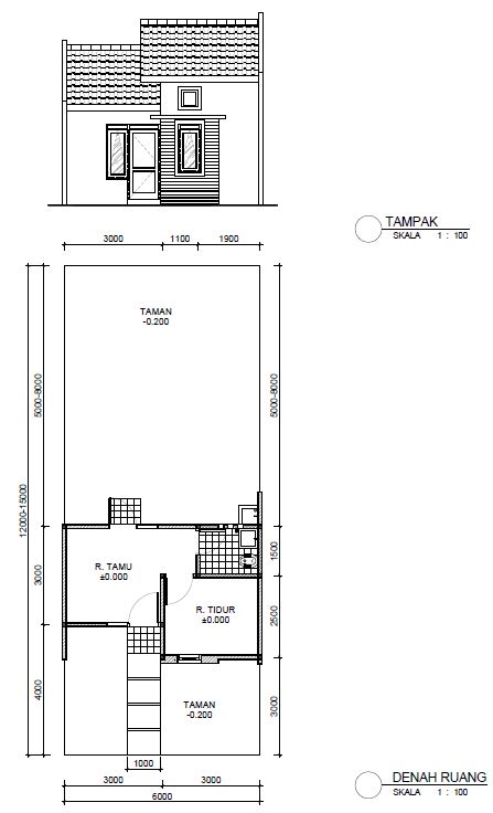
Siteplan
Lihat di tautan berikut Siteplan Bukit Damar.
Harga 1 September 2017 bukit Damar
| Tipe | LB/LT | Harga | Harga | Harga |
| Tunai | 12 bulan | KPR ke-1 | ||
| Damar 1 (1KT) | 22/72 | 172,375,000 | 192,543,125 | 187,281,785 |
| Damar 1A (1KT) | 22/90 | 207,105,000 | 231,267,075 | 224,963,925 |
| Damar 1A G (1KT) | 22/90 G | 212,280,000 | 237,037,200 | 230,578,800 |
| Damar 2 (1KT) | 36/72 | 210,210,000 | 234,729,150 | 228,662,850 |
| Damar 3 (2KT) | 36/90 | 253,162,500 | 282,621,188 | 274,936,313 |
| Damar 3 G (2KT) | 36/90 G | 258,337,500 | 288,391,313 | 280,551,188 |
| Damar 4 (2KT) | 38/120 | 356,950,000 | 398,344,250 | 387,545,750 |
Modal Pertama = Dp + Biaya KPR, Lihat promo
| Tipe | LB/LT | Harga | DP 5% | Estimasi | Modal Pertama |
| KPR ke-1 | Biaya KPR | DP+ biaya KPR | |||
| Damar 1 (1KT) | 22/72 | 187,281,785 | 9,364,089 | 8,895,885 | 18,259,974 |
| Damar 1A (1KT) | 22/90 | 224,963,925 | 11,248,196 | 10,685,786 | 21,933,983 |
| Damar 1A G (1KT) | 22/90 G | 230,578,800 | 11,528,940 | 10,952,493 | 22,481,433 |
| Damar 2 (1KT) | 36/72 | 228,662,850 | 11,433,143 | 10,861,485 | 22,294,628 |
| Damar 3 (2KT) | 36/90 | 274,936,313 | 13,746,816 | 13,059,475 | 26,806,290 |
| Damar 3 G (2KT) | 36/90 G | 280,551,188 | 14,027,559 | 13,326,181 | 27,353,741 |
| Damar 4 (2KT) | 38/120 | 387,545,750 | 19,377,288 | 18,408,423 | 37,785,711 |
Simulasi angsuran dengan bunga 7.5% dengan DP 5%
| Tipe | LB/LT | Harga | Angsuran KPR/bln (Bunga 7.5%) | |||
| KPR ke-1 | 5th | 10th | 15th | 20th | ||
| Damar 1 (1KT) | 22/72 | 187,281,785 | 3,565,106 | 2,111,915 | 1,649,319 | 1,433,293 |
| Damar 1A (1KT) | 22/90 | 224,963,925 | 4,282,425 | 2,536,844 | 1,981,171 | 1,721,679 |
| Damar 1A G (1KT) | 22/90 G | 230,578,800 | 4,389,310 | 2,600,161 | 2,030,619 | 1,764,651 |
| Damar 2 (1KT) | 36/72 | 228,662,850 | 4,352,838 | 2,578,555 | 2,013,746 | 1,749,988 |
| Damar 3 (2KT) | 36/90 | 274,936,313 | 5,233,702 | 3,100,366 | 2,421,259 | 2,104,125 |
| Damar 3 G (2KT) | 36/90 G | 280,551,188 | 5,340,587 | 3,163,683 | 2,470,707 | 2,147,096 |
| Damar 4 (2KT) | 38/120 | 387,545,750 | 7,377,341 | 4,370,225 | 3,412,967 | 2,965,940 |
Harga 5 Juni 2017 Bukit Damar
| Tipe | LB/LT | Harga | Harga | Harga | Estimasi |
| Tunai | 12 bulan | KPR ke-1 | Biaya KPR | ||
| Damar 1 (1KT) | 22/72 | 169,040,000 | 189,684,800 | 184,523,600 | 8,764,871 |
| Damar 1A (1KT) | 22/90 | 203,885,000 | 228,711,200 | 222,504,650 | 10,568,971 |
| Damar 1A G (1KT) | 22/90 G | 209,060,000 | 234,507,200 | 228,145,400 | 10,836,907 |
| Damar 2 (1KT) | 36/72 | 206,070,000 | 231,158,400 | 224,886,300 | 10,682,099 |
| Damar 3 (2KT) | 36/90 | 249,540,000 | 279,844,800 | 272,268,600 | 12,932,759 |
| Damar 3 G (2KT) | 36/90 G | 254,715,000 | 285,640,800 | 277,909,350 | 13,200,694 |
| Damar 4 (2KT) | 38/120 | 353,787,500 | 396,602,000 | 385,898,375 | 18,330,173 |
Modal Pertama = Dp + Biaya KPR, Lihat promo
| Tipe | LB/LT | Harga | DP 5% | Estimasi | Modal Pertama |
| KPR ke-1 | Biaya KPR | DP+ biaya KPR | |||
| Damar 1 (1KT) | 22/72 | 184,523,600 | 9,226,180 | 8,764,871 | 17,991,051 |
| Damar 1A (1KT) | 22/90 | 222,504,650 | 11,125,233 | 10,568,971 | 21,694,203 |
| Damar 1A G (1KT) | 22/90 G | 228,145,400 | 11,407,270 | 10,836,907 | 22,244,177 |
| Damar 2 (1KT) | 36/72 | 224,886,300 | 11,244,315 | 10,682,099 | 21,926,414 |
| Damar 3 (2KT) | 36/90 | 272,268,600 | 13,613,430 | 12,932,759 | 26,546,189 |
| Damar 3 G (2KT) | 36/90 G | 277,909,350 | 13,895,468 | 13,200,694 | 27,096,162 |
| Damar 4 (2KT) | 38/120 | 385,898,375 | 19,294,919 | 18,330,173 | 37,625,092 |
Simulasi angsuran dengan bunga 7.5% dengan DP 5%
| Tipe | LB/LT | Harga | Angsuran KPR/bln (Bunga 7.5%) | |||
| KPR ke-1 | 5th | 10th | 15th | 20th | ||
| Damar 1 (1KT) | 22/72 | 184,523,600 | 3,512,601 | 2,080,811 | 1,625,029 | 1,412,184 |
| Damar 1A (1KT) | 22/90 | 222,504,650 | 4,235,610 | 2,509,111 | 1,959,513 | 1,702,858 |
| Damar 1A G (1KT) | 22/90 G | 228,145,400 | 4,342,988 | 2,572,720 | 2,009,189 | 1,746,028 |
| Damar 2 (1KT) | 36/72 | 224,886,300 | 4,280,947 | 2,535,968 | 1,980,488 | 1,721,085 |
| Damar 3 (2KT) | 36/90 | 272,268,600 | 5,182,919 | 3,070,283 | 2,397,765 | 2,083,708 |
| Damar 3 G (2KT) | 36/90 G | 277,909,350 | 5,290,297 | 3,133,891 | 2,447,441 | 2,126,878 |
| Damar 4 (2KT) | 38/120 | 385,898,375 | 7,345,981 | 4,351,648 | 3,398,459 | 2,953,332 |
Lihat juga
Harga Damar 1 Maret 2017 diberlakukan menggantikan harga Januari - Februari 2017.
| Tipe | LB/LT | Harga | Harga | Harga |
| Tunai | 12 bulan | KPR ke-1 | ||
| Damar 1 (1KT) | 22/72 | 165,705,000 | 185,949,600 | 180,888,450 |
| Damar 1A (1KT) | 22/90 | 200,032,500 | 224,396,400 | 218,305,425 |
| Damar 1A G (1KT) | 22/90 G | 205,207,500 | 230,192,400 | 223,946,175 |
| Damar 2 (1KT) | 36/72 | 204,000,000 | 228,840,000 | 222,630,000 |
| Damar 3 (2KT) | 36/90 | 245,917,500 | 275,787,600 | 268,320,075 |
| Damar 3 G (2KT) | 36/90 G | 251,092,500 | 281,583,600 | 273,960,825 |
| Damar 4 (2KT) | 38/120 | 352,407,500 | 395,056,400 | 384,394,175 |
Modal pertama = Dp + Biaya KPR, Lihat promo gratis biaya KPR, tidak termasuk asuransi jiwa
| Tipe | LB/LT | Harga | DP 5% | Estimasi | Modal Pertama |
| KPR ke-1 | Biaya KPR | DP+ biaya KPR | |||
| Damar 1 (1KT) | 22/72 | 180,888,450 | 9,044,423 | 8,592,201 | 17,636,624 |
| Damar 1A (1KT) | 22/90 | 218,305,425 | 10,915,271 | 10,369,508 | 21,284,779 |
| Damar 1A G (1KT) | 22/90 G | 223,946,175 | 11,197,309 | 10,637,443 | 21,834,752 |
| Damar 2 (1KT) | 36/72 | 222,630,000 | 11,131,500 | 10,574,925 | 21,706,425 |
| Damar 3 (2KT) | 36/90 | 268,320,075 | 13,416,004 | 12,745,204 | 26,161,207 |
| Damar 3 G (2KT) | 36/90 G | 273,960,825 | 13,698,041 | 13,013,139 | 26,711,180 |
| Damar 4 (2KT) | 38/120 | 384,394,175 | 19,219,709 | 18,258,723 | 37,478,432 |
Estimasi Angsuran dengan Simulasi Bunga 8%
| Tipe | LB/LT | Harga | Angsuran KPR/bln (Bunga 8%) | |||
| KPR ke-1 | 5th | 10th | 15th | 20th | ||
| Damar 1 (1KT) | 22/72 | 180,888,450 | 3,484,377 | 2,084,942 | 1,642,231 | 1,437,372 |
| Damar 1A (1KT) | 22/90 | 218,305,425 | 4,205,125 | 2,516,215 | 1,981,928 | 1,734,694 |
| Damar 1A G (1KT) | 22/90 G | 223,946,175 | 4,313,780 | 2,581,231 | 2,033,139 | 1,779,517 |
| Damar 2 (1KT) | 36/72 | 222,630,000 | 4,288,427 | 2,566,060 | 2,021,190 | 1,769,058 |
| Damar 3 (2KT) | 36/90 | 268,320,075 | 5,168,535 | 3,092,690 | 2,435,996 | 2,132,120 |
| Damar 3 G (2KT) | 36/90 G | 273,960,825 | 5,277,191 | 3,157,706 | 2,487,207 | 2,176,942 |
| Damar 4 (2KT) | 38/120 | 384,394,175 | 7,404,421 | 4,430,574 | 3,489,797 | 3,054,466 |