
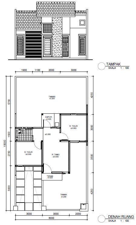
Saat ini, per 30 Januari 2022, cluster Bukit Damar tinggal 1 tipe rumah, tipe 22/90. Luas bangunan 22m, dengan 1 kamar tidur. Luas tanah 90m, dengan ukuran lebar 6m dan panjang 15m. Keistimewaan tipe 22/90 di Damar adalah lokasinya hadap selatan. Depan rumah view taman. Cocok yang ingin tinggal dengan rumah yang tidak berhadapan dengan rumah tetangga. Tersedia di blok CF.36. lihat tautan berikut:
Bukit Damar adalah Cluster tipe Real Estat Silver. Dilaunching 19 Desember 2015. Bukit Damar dipasarkan sebagai pengganti bukit Ebony yang sudah habis. Rumah murah-meriah yang laris manis. Saat awal dibuka, tersedia tipe 22/72, 22/90, 36/90, dan 38/120. Spesial di bukit Damar, tersedia tipe 22/90 yang depannya taman. Hanya ada di bukit Damar. Jalan dua arah diapit taman. Damar merupakan nama pohon. Dalam bahasa jawa, Damar sering dipakai untuk nama anak laki-laki, yang berarti penerang atau lampu.
Rumah-rumah ready stok siap huni, per 26 Oktober 2020, sudah sold out semua.
- CF.12/08, DAMAR 3 Hoek, 36/150, siap huni
- CF.11/19, DAMAR 3 HOEK, 38 /166, siap huni
- CF.36/18, DAMAR 3 HOEK, 38/150, siap huni
- CF.36/50, DAMAR 3 HOEK, 38/137, siap huni
- CF.02/11, DAMAR 4, 38/120, siap huni
- CF.02/06, DAMAR 4, 38/120, siap huni
- CF.02/12, DAMAR 4 HOEK, 39/163, siap huni

Harga dan Stok
Siteplan
Lihat di tautan berikut Siteplan Bukit Damar.
Lokasi
Bukit Damar berada di selatan Bukit Ebony.

Damar 22/72 dan 22/90 CitraIndah City
Damar 36/72 CitraIndah City
Damar 36/90 CitraIndah City
Damar 38/120 CitraIndah City